
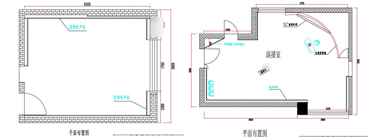
演播室會配備較復雜擴聲設備,在音質設計時主要考慮響度和清晰度等要求。在演播室吸聲材料和結構具有控制混響時間和音質缺陷的雙重功能。四川成都演播室特別邀請了諾聲聲學專業(yè)的設計師運用了聲學知識進行設計。
經過商討最后決定四川成都演播室吸音工程采用諾聲槽木吸音板和孔木吸音板兩種對吸聲頻譜選擇性很強的吸音材料,兩者搭配出現對中低頻有很好的吸聲性能。

歡迎來電咨詢:0757-88048577
佛山諾聲聲學裝飾材料有限公司是一家提供吸音板、隔音板等聲學材料銷售、聲學設計及施工一站式服務的企業(yè)。為保證產品質量,工廠引進德國進口機器,進行加工作業(yè)。采購吸音材料,就找佛山諾聲吸音板廠家,吸音板價格實惠,品質保證。